
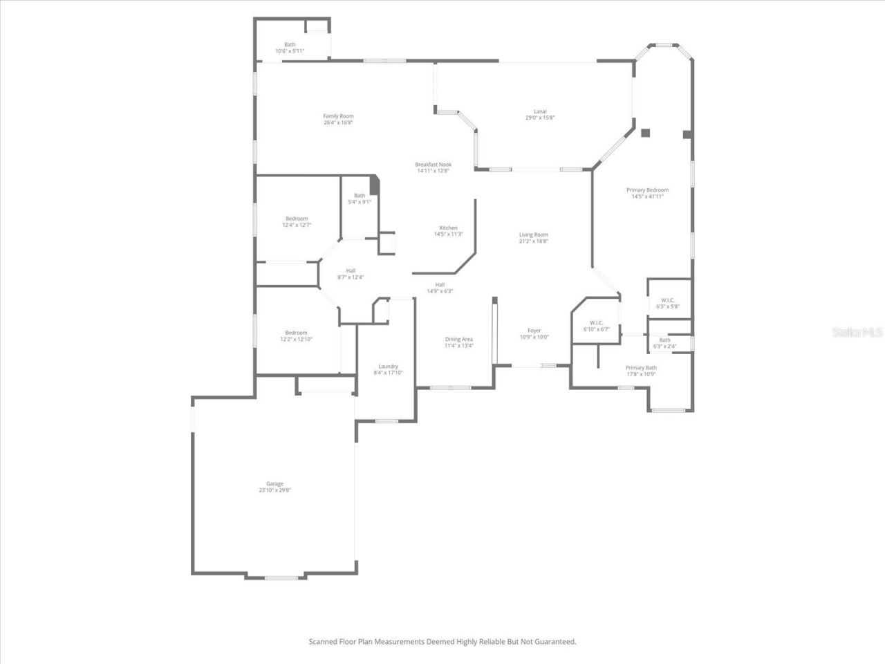
3-bedroom, 2.5-bath pool home on nearly 10 fully fenced acres in Oxford, FL - minutes from The Villages.This single-family home offers a functional open floor plan with a formal living room, family room, tall ceilings, and a large kitchen with a central island and dining area. The primary suite includes an en suite bath and direct access to a Florida room overlooking the screened pool. Two additional bedrooms provide space for family or guests.The property is set up for horses and livestock: a p...3-bedroom, 2.5-bath pool home on nearly 10 fully fenced acres in Oxford, FL - minutes from The Villages.This single-family home offers a functional open floor plan with a formal living room, family room, tall ceilings, and a large kitchen with a central island and dining area. The primary suite includes an en suite bath and direct access to a Florida room overlooking the screened pool. Two additional bedrooms provide space for family or guests.The property is set up for horses and livestock: a pole barn and a fully equipped barn with water and electric are already in place. Nearly 10 acres of fenced land gives room for horses, chickens, gardening, or recreational use.Key features:- 3 bed / 2.5 bath / pool / Florida room- Nearly 10 acres, fully fenced- Pole barn + equipped barn (water & electric)- Horse-ready / agricultural use- Open floor plan, tall ceilings, kitchen island- Oxford FL 34484 / Sumter County- Minutes to The Villages dining, shopping, and medical- No HOA restrictions on acreage useIdeal for buyers searching for: horse property near The Villages, acreage home Oxford FL, farm home Sumter County, pool home on land Central Florida, rural property near retirement community Florida.
View MoreCourtesy of
Agency Name: SOUNDINGS, LLC
Agency Contact: 352-698-6655
Agent Name: Lili Whittington
Presented by
Agent Name: Ramona Bautista Team
Agent Phone: 954.907.6272
Agency Title: The Keyes Company
Request Info
Send an email with a link to
12764 County Road 223, Oxford, FL 34484.
Email 12764 County Road 223, Oxford, FL 34484
Thank you for your inquiry! As a thank you, we have a Special Mortgage Offer for You.
We would like to provide you a free, no-obligation, home loan pre-approval review.